Откройте для себя современный жилой комплекс, расположенный в одном из самых привлекательных и быстро развивающихся районов столицы. Стратегически расположенный между бульварами Симеоновско Шоссе и Филипа Кутева, комплекс предлагает уникальное сочетание динамичной городской жизни и спокойствия в непосредственной близости от природы: Охотничьего парка, Софийского зоопарка и горы Витоша.
Комплекс состоит из двух гармонично дополняющих друг друга зданий, впечатляющих своим современным внешним видом и фасадами. Фасад каждого здания полностью подвесной и оснащен теплоизоляцией из каменной ваты, что гарантирует высокую энергоэффективность. Большая площадь остекления обеспечивает обильное естественное освещение, что способствует созданию уютной и теплой атмосферы в доме.
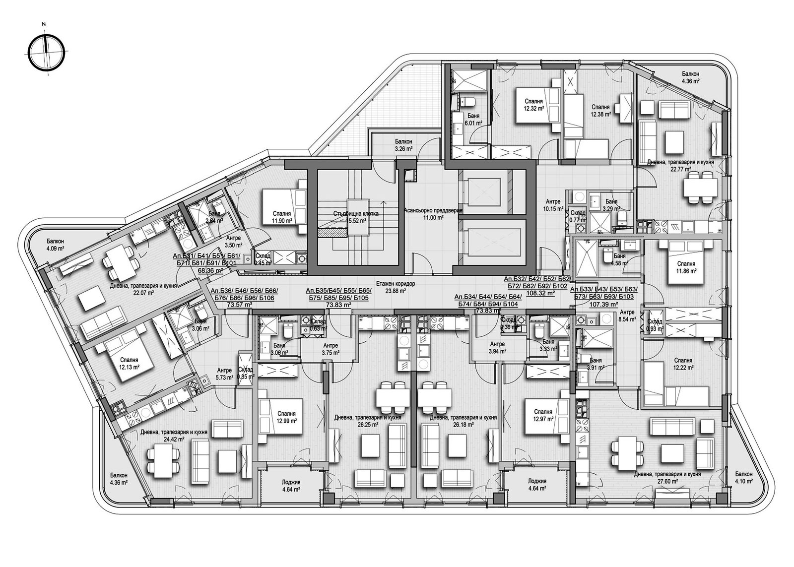
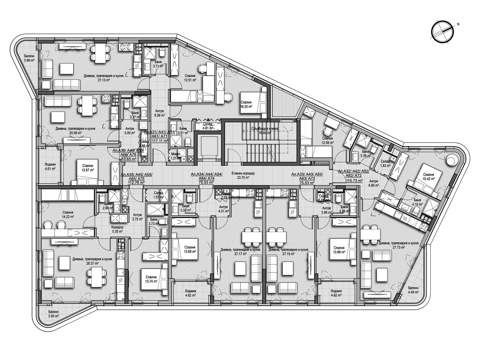
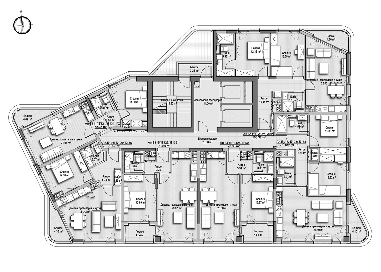
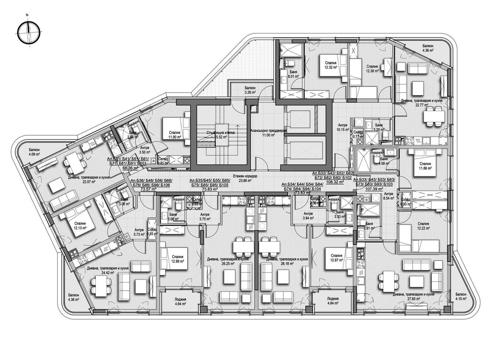
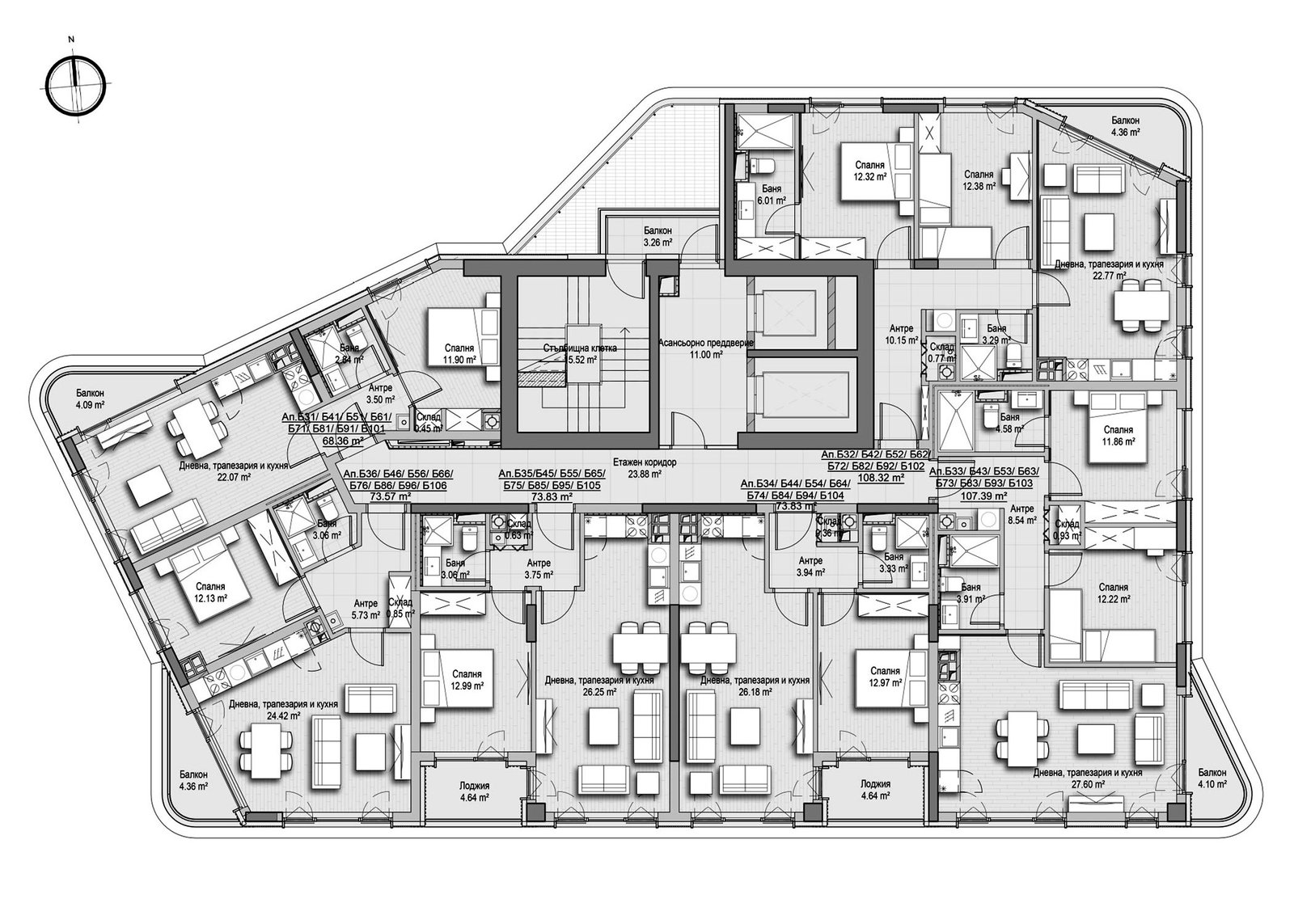
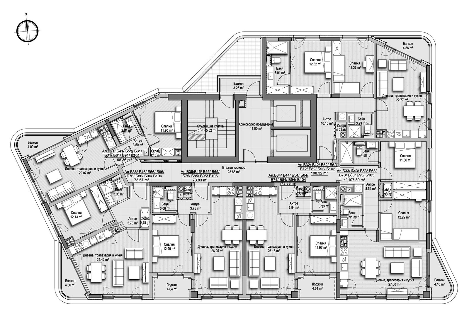
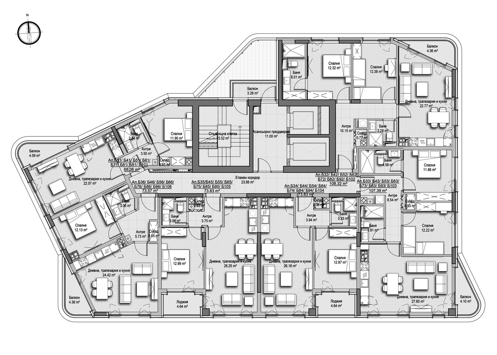
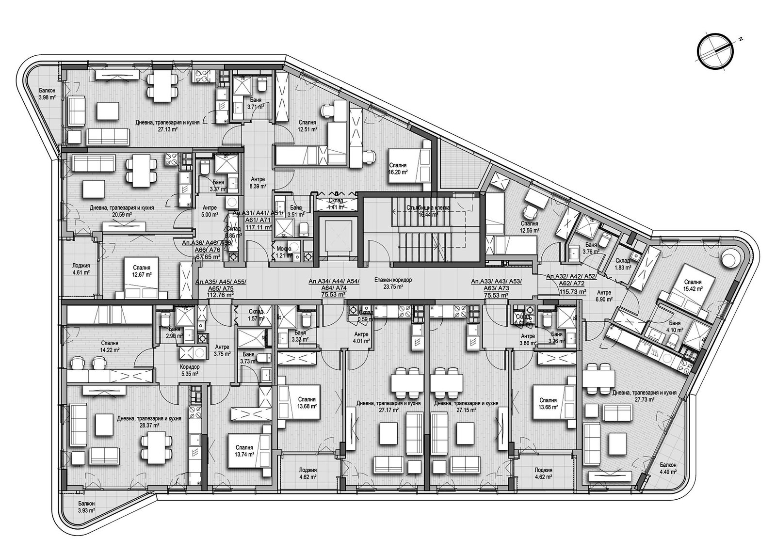
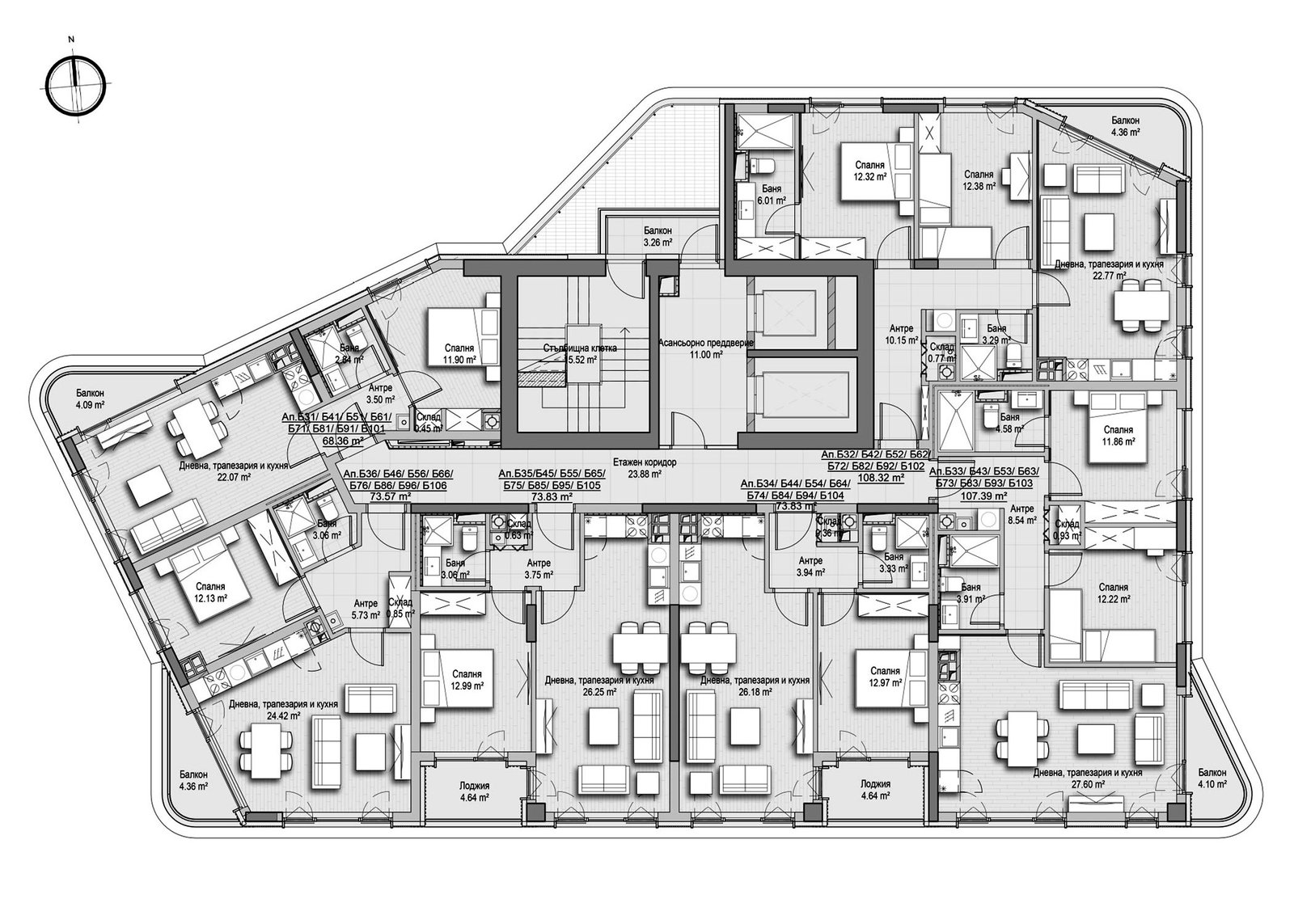
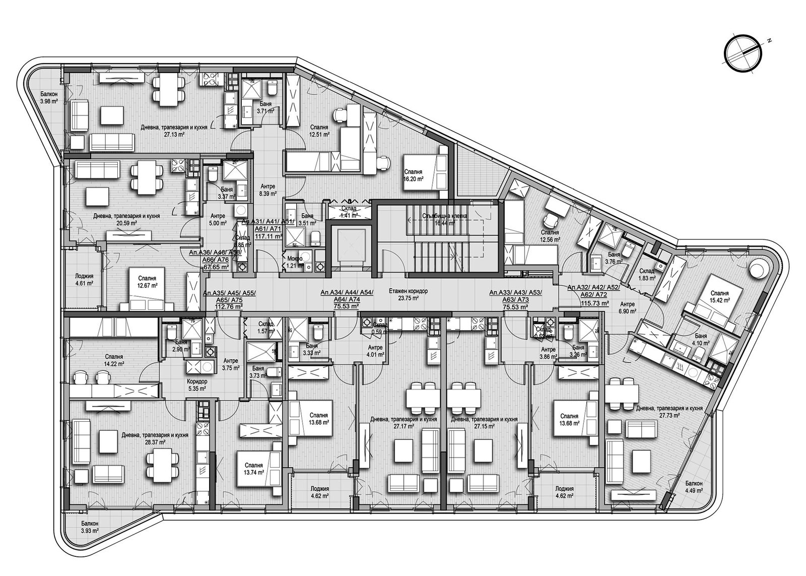
Комплекс, состоящий из 136 квартир, предлагает разнообразные функциональные и светлые жилые пространства, каждое из которых обладает уникальным и индивидуальным характером. Квартиры оборудованы газовым отоплением и подогревом полов, что гарантирует комфорт в любое время года. На первом этаже расположены четыре коммерческих помещения, предлагающих все необходимое для повседневной жизни жильцов.
На крышах зданий установлены фотоэлектрические панели, производящие более 110 000 кВт·ч чистой энергии в год, что полностью покрывает энергопотребление мест общего пользования. Это решение не только снижает затраты на электроэнергию, но и способствует устойчивому развитию комплекса.
Комплекс обширен зелеными зонами, призванными обеспечить жителям уют и комфорт. Парковая мебель и разнообразие видов растений создают приятную и спокойную атмосферу, подходящую для отдыха и развлечений на свежем воздухе.
Комплекс находится под видеонаблюдением и круглосуточной охраной. Высокотехнологичные лифты и современная инфраструктура гарантируют безопасность и удобство для жильцов, обеспечивая при этом легкий доступ на все уровни здания.
Цены указаны без НДС!
